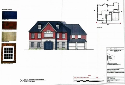
Rare opportunity to purchase a building plot in a prime Chislehurst location. The building plot comes with outline planning permission for a substantial 5 double bedroom, 5 bathroom, 3 reception room home. The property will offer 5,743 square feet of accommodation and a 75 foot frontage. The plot...